こちらの物件は
おかげさまで成約と
なりました。
こちらの物件は成約となりましたが、同じエリアには他にも素敵な物件がございます。
ぜひ最新の販売中物件をご覧ください。
- 大阪府堺市南区新檜尾台4丁で物件をお探しの方はこちら
- 堺市立新檜尾台小学校校区で物件をお探しの方はこちら
- 堺市立赤坂台中学校校区で物件をお探しの方はこちら
- 新檜尾台第4次住宅18号棟の物件をお探しの方はこちら
PRICE DOWN価格変更 100万値下げ!
- 価格
-
成約済万円
返済例月々000,000円
- 面積
-
建物:84.07㎡
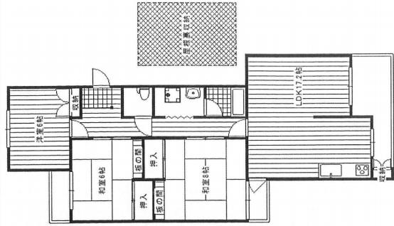
- 間取り
- 3LDK
新檜尾台第4次住宅18号棟の物件写真
新檜尾台第4次住宅18号棟のアクセスマップ
読込中
新檜尾台第4次住宅18号棟の物件概要
| 物件番号 | 30496 |
|---|---|
| 建物名 | 新檜尾台第4次住宅18号棟 |
| 住所 | 大阪府堺市南区新檜尾台4丁 |
| 最寄駅 | 泉北線 光明池駅 徒歩13分 |
| 小学校区 | 堺市立新檜尾台小学校 |
| 中学校区 | 堺市立赤坂台中学校 |
| 間取 | 3LDK |
| 駐車場 | 空有 |
| 管理費 | 3,800 円 |
| 修繕積立金 | 6,000 円 |
| 土地権利 | 所有権 |
| 建物面積 | 84.07㎡ 壁心 |
| バルコニー面積 | 12.94㎡ |
| 主要採光面(向き) | 南 |
| 所在階 | 5階 |
| 総戸数 | 30戸 |
| 築年月日 | 1982年01月 |
| 構造 | RC(鉄筋コンクリート) 5階建 |
| 国土法 | 不要 |
| 現況 | 居住中 |
| 引渡 | 期日指定 |
| 取引態様 | 仲介 |
| 価格更新日/価格 | 2023/04/02 成約済 |
| 情報更新日 | 2023/05/02 |
| 次回更新予定日 | 2023/06/01 |
新檜尾台第4次住宅18号棟のローンシミュレーション
住宅ローンもおまかせください!
現在の店頭基準金利は2.475%
紀陽銀行ならば
借入額480万円(税込)
金利%
年ローン
- 毎月返済額
- 円
頭金0円でボーナス払いなしの場合の金額です。
また、お客様のご条件により金利の優遇幅が変動する場合があります。
返済例は全額ローン(ボーナス返済0円)、元利金等支払、借入期間35年、変動金利(金利優遇適用後)の0.28%にて計算
(現在2026年4月適用)
住宅ローンシミュレーターを用いて算出したものであり、実際の借り入れ事例を示すものではなく、また、実際の支払い金額と若干計算結果が異なる場合があります。金利優遇にはいくつかの条件がございます。条件等により優遇が適用されない場合もございます。上記金利は、優遇金利を確約するものではありません。また、お借り入れの際は、銀行事務手数料等別途諸費用が発生する場合がございます。詳細につきましては上記金融機関公式サイト、もしくは弊社営業担当者にご相談ください。




