- 価格
-
4,198万円
返済例月々000,000円
- 面積
-
建物:100.40㎡
土地:97.47㎡
- 間取り
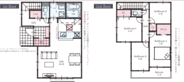
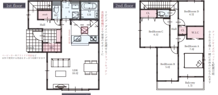
- 4LDK
堺市北区南花田町 新築一戸建ての物件写真
- スタッフのおすすめPOINT!
-
閑静な住宅街でおすすめです。
物件担当の
古本 剛士です
- 角地です。
- 新築です。
- 閑静な住宅街
堺市北区南花田町 新築一戸建てのアクセスマップ
読込中
堺市北区南花田町 新築一戸建ての物件概要
| 物件番号 | 120614 |
|---|---|
| 住所 | 大阪府堺市北区南花田町 |
| 最寄駅 | 大阪メトロ御堂筋線 新金岡駅 徒歩20分 |
| 小学校区 | 堺市立北八下小学校 |
| 中学校区 | 堺市立八下中学校 |
| 間取 | 4LDK |
| 土地面積 | 97.47㎡ 公簿 |
| 土地権利 | 所有権 |
| 地目 | 宅地 |
| 都市計画 | 市街化区域 |
| 用途地域 | 準工業地域 |
| 建物面積 | 100.40㎡ |
| 築年月日 | 2025年11月 |
| 構造 | 木造 2階建 |
| 建ぺい率 | 60% |
| 容積率 | 200% |
| 国土法 | 不要 |
| 現況 | 未完成 |
| 引渡 | 相談 |
| 取引態様 | 仲介 |
| 物件登録日/価格 | 2026/04/10 4,198万円 |
| 価格更新日/価格 | 2026/04/13 4,198万円 |
| 情報更新日 | 2026/04/13 |
| 次回更新予定日 | 2026/05/13 |
堺市北区南花田町 新築一戸建てのローンシミュレーション
住宅ローンもおまかせください!
現在の店頭基準金利は2.475%
紀陽銀行ならば
借入額4,198万円(税込)
金利%
年ローン
- 毎月返済額
- 円
頭金0円でボーナス払いなしの場合の金額です。
また、お客様のご条件により金利の優遇幅が変動する場合があります。
返済例は全額ローン(ボーナス返済0円)、元利金等支払、借入期間35年、変動金利(金利優遇適用後)の0.28%にて計算
(現在2026年4月適用)
住宅ローンシミュレーターを用いて算出したものであり、実際の借り入れ事例を示すものではなく、また、実際の支払い金額と若干計算結果が異なる場合があります。金利優遇にはいくつかの条件がございます。条件等により優遇が適用されない場合もございます。上記金利は、優遇金利を確約するものではありません。また、お借り入れの際は、銀行事務手数料等別途諸費用が発生する場合がございます。詳細につきましては上記金融機関公式サイト、もしくは弊社営業担当者にご相談ください。




