- 価格
-
4,390万円
返済例月々000,000円
- 面積
-
建物:101.23㎡
土地:135.80㎡
- 間取り
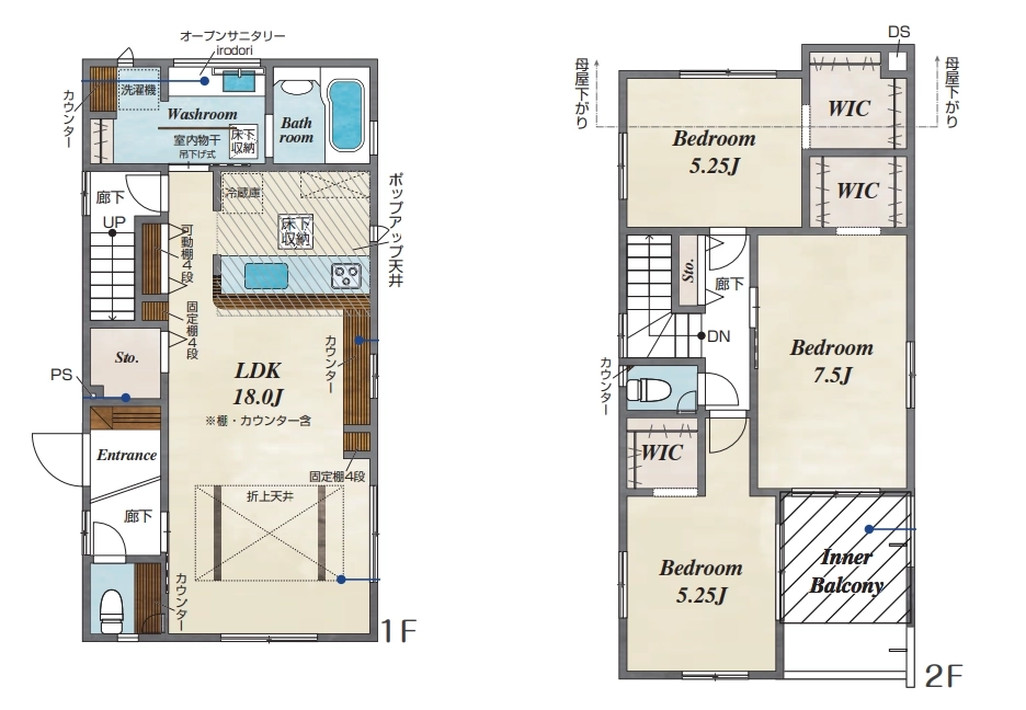
- 3LDK
堺市南区晴美台3丁 新築一戸建ての物件写真
- スタッフのおすすめPOINT!
-
2026年3月下旬に完成予定の新築戸建て物件です!はるみ小学校まで徒歩9分(650m)晴美台中学校まで徒歩2分(100m)なので、お子様にも安心して通学していただけますよ!KINSHO槇塚台店まで徒歩3分(210m)ファミリーマート泉北晴美台3丁店まで徒歩3分(240m)なので、お買い物にも便利な立地です♪駐車2台可能なので、セカンドカーや来客時にも使用できて便利ですね◎LDKにカウンタースペースがあるので、お子様の学習時やワークスペース、インテリアの飾り台としても使用できます◎リビング内階段なので、ご家族様でコミュニケーションをとる機会も増えそうですね◎水回りの動線が良いので家事も捗りそうですよ◎2階の各お部屋にはウォークインクローゼットがあるのでお洋服や小物などもスッキリ収納できそうですね♪1・2階にトイレがあるので階段を上り下りせずに使用できるのも魅力的!夢のマイホームで新生活をスタートしませんか♪お気軽にお問合せ下さい!!
物件担当の
古本 剛士です
- 駐車場2台あります。
- スーパーまで徒歩圏内です。
- 新築です。
- 小学校まで近いです。
堺市南区晴美台3丁 新築一戸建てのアクセスマップ
堺市南区晴美台3丁 新築一戸建ての物件概要
| 物件番号 | 119084 |
|---|---|
| 住所 | 大阪府堺市南区晴美台3丁 |
| 最寄駅 | 泉北線 泉ケ丘駅 バス11分 (槙塚台三丁バス停より徒歩3分) |
| 小学校区 | 堺市立はるみ小学校 |
| 中学校区 | 堺市立晴美台中学校 |
| 間取 | 3LDK |
| 駐車場 | 有 |
| 土地面積 | 135.80㎡ |
| 土地権利 | 所有権 |
| 地目 | 宅地 |
| 都市計画 | 市街化区域 |
| 用途地域 | 第一種低層住居専用地域 |
| 建物面積 | 101.23㎡ |
| 築年月日 | 2026年03月 |
| 構造 | 木造 2階建 |
| 建築確認番号 | 第R07SHC109104号 |
| 建ぺい率 | 40% |
| 容積率 | 80% |
| 現況 | 未完成 |
| 引渡 | 期日指定 |
| 取引態様 | 仲介 |
| 物件登録日/価格 | 2025/11/27 4,390万円 |
| 価格更新日/価格 | 2025/12/01 4,390万円 |
| 情報更新日 | 2025/12/01 |
| 次回更新予定日 | 2025/12/31 |
堺市南区晴美台3丁 新築一戸建てのローンシミュレーション
住宅ローンもおまかせください!
現在の店頭基準金利は2.475%
紀陽銀行ならば
借入額4,390万円(税込)
金利%
年ローン
- 毎月返済額
- 円
頭金0円でボーナス払いなしの場合の金額です。
また、お客様のご条件により金利の優遇幅が変動する場合があります。
返済例は全額ローン(ボーナス返済0円)、元利金等支払、借入期間35年、変動金利(金利優遇適用後)の0.28%にて計算
(現在2025年12月適用)
住宅ローンシミュレーターを用いて算出したものであり、実際の借り入れ事例を示すものではなく、また、実際の支払い金額と若干計算結果が異なる場合があります。金利優遇にはいくつかの条件がございます。条件等により優遇が適用されない場合もございます。上記金利は、優遇金利を確約するものではありません。また、お借り入れの際は、銀行事務手数料等別途諸費用が発生する場合がございます。詳細につきましては上記金融機関公式サイト、もしくは弊社営業担当者にご相談ください。




