こちらの物件は
おかげさまで成約と
なりました。
こちらの物件は成約となりましたが、同じエリアには他にも素敵な物件がございます。
ぜひ最新の販売中物件をご覧ください。
- 大阪府堺市西区浜寺石津町西4丁で物件をお探しの方はこちら
- 堺市立浜寺石津小学校校区で物件をお探しの方はこちら
- 堺市立浜寺中学校校区で物件をお探しの方はこちら
- 価格
-
成約済万円
返済例月々000,000円
- 面積
-
土地:74.79㎡
- 間取り
- -
堺市西区浜寺石津町西4丁 土地の物件写真
- スタッフのおすすめPOINT!
-
建築条件なしの土地なので、お好きなハウスメーカー・工務店で建築可能です♪南海本線「石津川」駅より徒歩5分なので、毎日の通勤・通学、お出かけにも便利ですね◎夢のマイホームで新生活をスタートしませんか♪間取りのご相談も承ります!お気軽にお問い合わせください!! ≪建物参考プラン図:1階43.74平米、2階43.74平米、3階40.50平米、延床面積127.98平米◇建物代金:2,050万円◇外構・その他別途≫
物件担当の
古本 剛士です
- 建築条件無し売り土地です。
- 駅まで徒歩圏内です。
堺市西区浜寺石津町西4丁 土地のアクセスマップ
堺市西区浜寺石津町西4丁 土地の物件概要
| 物件番号 | 118735 |
|---|---|
| 住所 | 大阪府堺市西区浜寺石津町西4丁 |
| 最寄駅 | 南海本線 石津川駅 徒歩5分 |
| 小学校区 | 堺市立浜寺石津小学校 |
| 中学校区 | 堺市立浜寺中学校 |
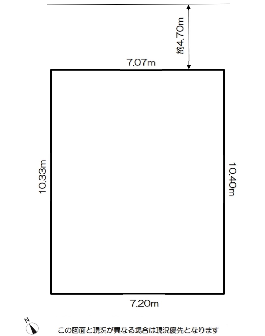
| 土地面積 | 74.79㎡ 公簿 |
| 地目 | 宅地 |
| 都市計画 | 市街化区域 |
| 用途地域 | 第二種中高層住居専用地域 |
| 建物面積 | 0.00㎡ |
| 建ぺい率 | 60% |
| 容積率 | 200% |
| 現況 | 更地 |
| 引渡 | 相談 |
| 取引態様 | 仲介 |
| 価格更新日/価格 | 2026/02/07 成約済 |
| 情報更新日 | 2026/02/07 |
| 次回更新予定日 | 2026/03/09 |
堺市西区浜寺石津町西4丁 土地のローンシミュレーション
住宅ローンもおまかせください!
現在の店頭基準金利は2.475%
紀陽銀行ならば
借入額1,260万円(税込)
金利%
年ローン
- 毎月返済額
- 円
頭金0円でボーナス払いなしの場合の金額です。
また、お客様のご条件により金利の優遇幅が変動する場合があります。
返済例は全額ローン(ボーナス返済0円)、元利金等支払、借入期間35年、変動金利(金利優遇適用後)の0.28%にて計算
(現在2026年3月適用)
住宅ローンシミュレーターを用いて算出したものであり、実際の借り入れ事例を示すものではなく、また、実際の支払い金額と若干計算結果が異なる場合があります。金利優遇にはいくつかの条件がございます。条件等により優遇が適用されない場合もございます。上記金利は、優遇金利を確約するものではありません。また、お借り入れの際は、銀行事務手数料等別途諸費用が発生する場合がございます。詳細につきましては上記金融機関公式サイト、もしくは弊社営業担当者にご相談ください。




