こちらの物件は
おかげさまで成約と
なりました。
こちらの物件は成約となりましたが、同じエリアには他にも素敵な物件がございます。
ぜひ最新の販売中物件をご覧ください。
- 大阪府堺市堺区旭ヶ丘北町3丁で物件をお探しの方はこちら
- 堺市立大仙小学校校区で物件をお探しの方はこちら
- 堺市立旭中学校校区で物件をお探しの方はこちら
- 価格
-
成約済万円
返済例月々000,000円
- 面積
-
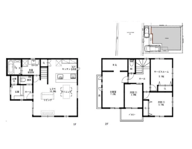
建物:98.53㎡
土地:91.14㎡
- 間取り
- 3SLDK
堺市堺区旭ヶ丘北町3丁 新築一戸建ての物件写真
- スタッフのおすすめPOINT!
-
JR阪和線「上野芝」駅徒歩18分・「百舌鳥」駅徒歩18分と2駅利用可能です◎車種にはよりますが駐車2台可能なので、セカンドカーや来客時にも使用できて便利ですね♪キッチンは対面式キッチンなので、お料理をしながらでもリビングのご家族様との会話を楽しむことができます◎リビング内階段なので、ご家族様とコミュニケーションをとる機会が増えそうですね♪2階の各お部屋には収納スペースが豊富なので、お洋服や小物などもスッキリ収納できそうですね◎ガス乾燥機「乾太くん」が標準装備なのもうれしいですね♪1・2階にトイレがあるので階段を上り下りせずに使用できるのも魅力的!夢のマイホームで新生活をスタートしませんか♪お気軽にお問い合わせください!!
物件担当の
古本 剛士です
- 駐車場2台あります。
- スーパーまで徒歩圏内です。
- 新築です。
- 小学校まで近いです。
堺市堺区旭ヶ丘北町3丁 新築一戸建てのアクセスマップ
堺市堺区旭ヶ丘北町3丁 新築一戸建ての物件概要
| 物件番号 | 117623 |
|---|---|
| 住所 | 大阪府堺市堺区旭ヶ丘北町3丁 |
| 最寄駅 | 阪和線 上野芝駅 徒歩18分 |
| 小学校区 | 堺市立大仙小学校 |
| 中学校区 | 堺市立旭中学校 |
| 間取 | 3SLDK |
| 土地面積 | 91.14㎡ |
| 土地権利 | 所有権 |
| 地目 | 宅地 |
| 都市計画 | 市街化区域 |
| 用途地域 | 第二種中高層住居専用地域 |
| 建物面積 | 98.53㎡ |
| 築年月日 | 2024年12月 |
| 構造 | 木造 2階建 |
| 建ぺい率 | 60% |
| 容積率 | 200% |
| 現況 | 未完成 |
| 引渡 | 相談 |
| 取引態様 | 仲介 |
| 価格更新日/価格 | 2026/04/08 成約済 |
| 情報更新日 | 2026/04/08 |
| 次回更新予定日 | 2026/05/08 |
堺市堺区旭ヶ丘北町3丁 新築一戸建てのローンシミュレーション
住宅ローンもおまかせください!
現在の店頭基準金利は2.475%
紀陽銀行ならば
借入額4,180万円(税込)
金利%
年ローン
- 毎月返済額
- 円
頭金0円でボーナス払いなしの場合の金額です。
また、お客様のご条件により金利の優遇幅が変動する場合があります。
返済例は全額ローン(ボーナス返済0円)、元利金等支払、借入期間35年、変動金利(金利優遇適用後)の0.28%にて計算
(現在2026年4月適用)
住宅ローンシミュレーターを用いて算出したものであり、実際の借り入れ事例を示すものではなく、また、実際の支払い金額と若干計算結果が異なる場合があります。金利優遇にはいくつかの条件がございます。条件等により優遇が適用されない場合もございます。上記金利は、優遇金利を確約するものではありません。また、お借り入れの際は、銀行事務手数料等別途諸費用が発生する場合がございます。詳細につきましては上記金融機関公式サイト、もしくは弊社営業担当者にご相談ください。




