- 価格
-
2,700万円
返済例月々000,000円
- 面積
-
建物:83.31㎡
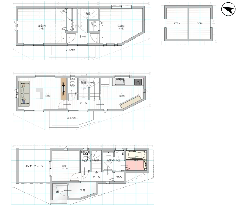
土地:44.72㎡
- 間取り
- 3LDK
堺市西区神野町1丁 中古一戸建ての物件写真
- 駅まで徒歩圏内です。
- 空き家
堺市西区神野町1丁 中古一戸建てのアクセスマップ
読込中
堺市西区神野町1丁 中古一戸建ての物件概要
| 物件番号 | 117408 |
|---|---|
| 住所 | 大阪府堺市西区神野町1丁 |
| 最寄駅 | 阪和線 上野芝駅 徒歩9分 |
| 小学校区 | 堺市立上野芝小学校 |
| 中学校区 | 堺市立津久野中学校 |
| 間取 | 3LDK |
| 駐車場 | 有 |
| 土地面積 | 44.72㎡ |
| 土地権利 | 所有権 |
| 地目 | 宅地 |
| 都市計画 | 市街化区域 |
| 用途地域 | 第二種中高層住居専用地域 |
| 建物面積 | 83.31㎡ |
| 築年月日 | 2024年09月 |
| 構造 | 木造 3階建 |
| 建築確認番号 | 第R05確認建築近確0000899号 |
| 建ぺい率 | 60% |
| 容積率 | 200% |
| 現況 | 空家 |
| 引渡 | 即時 |
| 取引態様 | 仲介 |
| 物件登録日/価格 | 2025/09/25 2,700万円 |
| 価格更新日/価格 | 2025/11/10 2,700万円 |
| 情報更新日 | 2025/11/10 |
| 次回更新予定日 | 2025/12/10 |
堺市西区神野町1丁 中古一戸建てのローンシミュレーション
住宅ローンもおまかせください!
現在の店頭基準金利は2.475%
紀陽銀行ならば
借入額2,700万円(税込)
金利%
年ローン
- 毎月返済額
- 円
頭金0円でボーナス払いなしの場合の金額です。
また、お客様のご条件により金利の優遇幅が変動する場合があります。
返済例は全額ローン(ボーナス返済0円)、元利金等支払、借入期間35年、変動金利(金利優遇適用後)の0.28%にて計算
(現在2025年12月適用)
住宅ローンシミュレーターを用いて算出したものであり、実際の借り入れ事例を示すものではなく、また、実際の支払い金額と若干計算結果が異なる場合があります。金利優遇にはいくつかの条件がございます。条件等により優遇が適用されない場合もございます。上記金利は、優遇金利を確約するものではありません。また、お借り入れの際は、銀行事務手数料等別途諸費用が発生する場合がございます。詳細につきましては上記金融機関公式サイト、もしくは弊社営業担当者にご相談ください。




